Používáme cookies k optimalizaci našich webových stránek a našich služeb. Další informace o cookies najdete zde.

Nastavení


BYT 3+KK | 80 m2, PRAHA 4 - NUSLE  - 11 500 000 Kč

BYT 3+KK | 80 m2, PRAHA 4 - NUSLE - 11 500 000 Kč

Popis nemovitosti

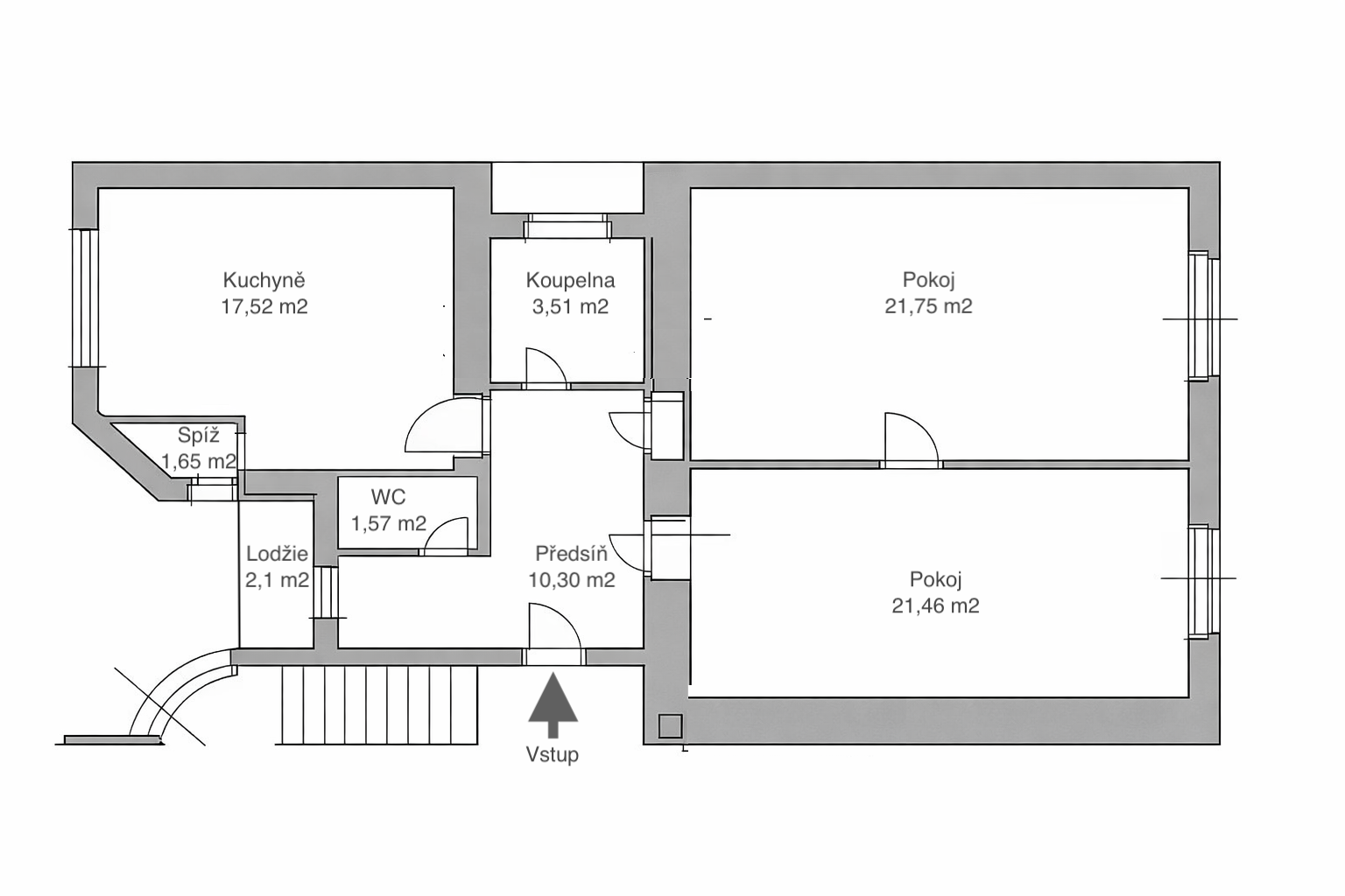
Nabízím k prodeji prostorný byt o dispozici 2+1 s možností úpravy na moderní 3+kk, o celkové ploše 80 m², situovaný ve 4. patře cihlového domu s výtahem v žádané lokalitě Praha 4 – Nusle.

Byt je před rekonstrukcí, což představuje ideální příležitost pro vytvoření bydlení přesně podle vlastních představ, případně zajímavou investici s potenciálem zhodnocení. Rekonstrukce byla částečně zahájena, nový majitel tak může plynule navázat a dokončit úpravy dle svého vkusu.

Aktuální stav:
• ložnice – nově vyštukované zdi a sádrokartonový podhled
• koupelna – připravena na nové rozvody vody, stěny bez finálních úprav
• ostatní místnosti – určeny k rekonstrukci
• plastová okna
• orientace na východ a západ zajišťující dostatek světla po celý den
• praktická dispozice se samostatnými vstupy do jednotlivých pokojů
• lodžie s okny

Dispoziční řešení nabízí jednoduchou úpravu na vzdušný a funkční 3+kk, který odpovídá současným požadavkům na moderní bydlení.

Vytápění je řešeno plynovými vafkami.

Dům je ve velmi dobrém stavu po rekonstrukci a poskytuje klidné a udržované zázemí. K bytu náleží velká sklepní komora v suterénu domu.

Lokalita Praha 4 – Nusle patří dlouhodobě mezi vyhledávané rezidenční oblasti díky skvělé kombinaci dostupnosti a občanské vybavenosti. V docházkové vzdálenosti se nachází supermarket, obchody, restaurace, kavárny i další služby pro každodenní život. Samozřejmostí je výborné dopravní spojení do centra města prostřednictvím MHD.
2 stanice autobusem na metro C Pankrác nebo 10 min. na metro I.P. Pavlova.


V okolí najdete také školy, školky a dostatek zeleně pro volnočasové aktivity a odpočinek. Parkování je možné v modrých zónách přímo v okolí domu.

Pro více informací nebo sjednání prohlídky mě neváhejte kontaktovat.

Martin Kratochvíl

Jmenuji se Martin Kratochvíl a již 25 let se pohybuji v oblasti realit. Moje vášeň pro tuto profesi pramení z touhy pomáhat lidem najít jejich vysněné domovy. Každý klient je pro mě jedinečný a zaslouží si individuální přístup, který reflektuje jeho potřeby a přání.

V průběhu své kariéry jsem se setkal s různými situacemi a výzvami, které mě naučily, jak být flexibilní a přizpůsobivý. Mým cílem je nejen zprostředkovat prodej nebo koupi nemovitosti, ale také vytvořit pozitivní a bezproblémový zážitek pro všechny zúčastněné. Věřím, že otevřená komunikace a důvěra jsou klíčem k úspěchu.

Rád sdílím své znalosti a zkušenosti, ať už prostřednictvím poradenství nebo realizací realitních transakcí. Mým mottem je, že každý krok na cestě k novému domovu by měl být inspirující a naplňující. Těším se na možnost spolupráce a na to, jak společně dosáhneme vašich realitních cílů.


Martin Kratochvíl

PŮDORYS

Kontaktní formulář

Stáhnout PDF