Používáme cookies k optimalizaci našich webových stránek a našich služeb. Další informace o cookies najdete zde.

Nastavení


BYT 3+KK | 92 m2, BRNO - STARÉ BRNO  12 990 000 Kč

BYT 3+KK | 92 m2, BRNO - STARÉ BRNO 12 990 000 Kč

Popis nemovitosti

 

Prodej designového bytu 3+kk, 92 m², Hlinky – Staré Brno

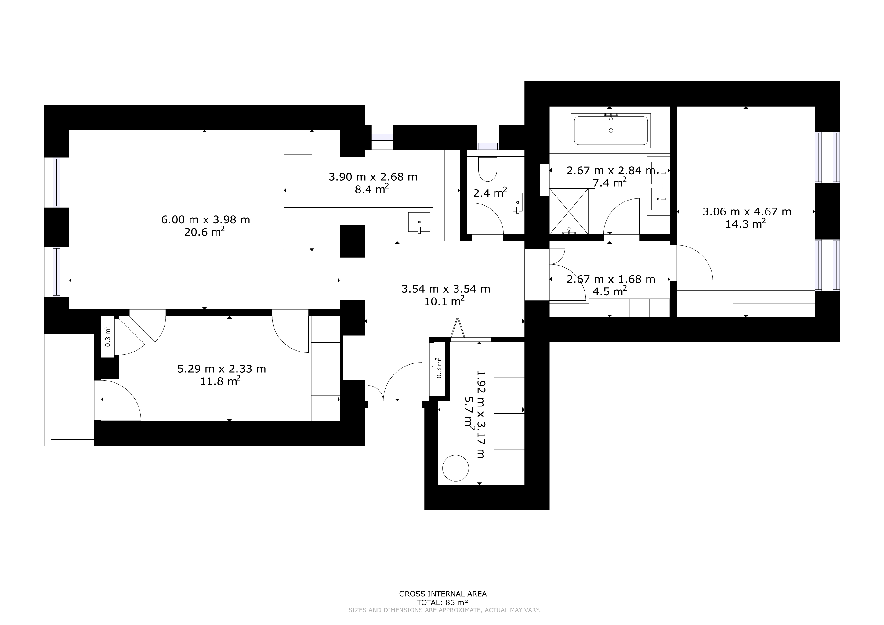
Nabízíme k prodeji prostorný a světlý byt o velikosti 3+kk a celkové ploše 91,7 m², který se nachází ve velmi atraktivní lokalitě Staré Brno – ulice Hlinky. Byt prošel kompletní rekonstrukcí a je připraven k okamžitému nastěhování bez dalších investic.

Dominantou bytu je velkorysý obývací pokoj s kuchyňským koutem o velikosti 28 m², který tvoří příjemný otevřený prostor pro každodenní život i setkávání s přáteli. Moderní kuchyňská linka je vybavena vestavěnými spotřebiči a doplněna elegantní pracovní deskou.

Ložnice o velikosti 12 m² nabízí klidné zázemí a zároveň přímý vstup na menší balkon s výhledem do zeleně, což vytváří velmi příjemnou atmosféru pro ranní kávu nebo večerní odpočinek.

Další pokoj o velikosti 14 m² je ideální jako dětský pokoj, pracovna nebo pokoj pro hosty a disponuje praktickými úložnými prostory.

Velkou výhodou bytu je prostorná koupelna, která nabízí jak sprchový kout, tak vanu, dvě umyvadla a dostatek místa pro komfortní každodenní využití.

Součástí bytu je také větší komora propojená s technickou místností, kde je umístěn kotel zajišťující vytápění bytu, a která zároveň poskytuje dostatek úložného prostoru.

Byt se nachází ve vyhledávané části Starého Brna, v blízkosti parků, kaváren, restaurací i kompletní občanské vybavenosti. Historické centrum Brna je dostupné přibližně do 10 minut, ať už pěšky nebo MHD.

Tato nemovitost představuje ideální kombinaci klidného bydlení, moderního interiéru a skvělé dostupnosti centra města.

V případě zájmu o více informací nebo domluvení prohlídky mě neváhejte kontaktovat.

Videoprohlídka

3D scan

Martin Kratochvíl

Jmenuji se Martin Kratochvíl a již 25 let se pohybuji v oblasti realit. Moje vášeň pro tuto profesi pramení z touhy pomáhat lidem najít jejich vysněné domovy. Každý klient je pro mě jedinečný a zaslouží si individuální přístup, který reflektuje jeho potřeby a přání.

V průběhu své kariéry jsem se setkal s různými situacemi a výzvami, které mě naučily, jak být flexibilní a přizpůsobivý. Mým cílem je nejen zprostředkovat prodej nebo koupi nemovitosti, ale také vytvořit pozitivní a bezproblémový zážitek pro všechny zúčastněné. Věřím, že otevřená komunikace a důvěra jsou klíčem k úspěchu.

Rád sdílím své znalosti a zkušenosti, ať už prostřednictvím poradenství nebo realizací realitních transakcí. Mým mottem je, že každý krok na cestě k novému domovu by měl být inspirující a naplňující. Těším se na možnost spolupráce a na to, jak společně dosáhneme vašich realitních cílů.


Martin Kratochvíl

PŮDORYS

Kontaktní formulář

Stáhnout PDF